« Back to News & Notices

Notice of Proposed Annexation of Real Property into Bona Vista Water District


NOTICE OF PROPOSED ANNEXATION OF REAL PROPERTY INTO

BONA VISTA WATER IMPROVEMENT DISTRICT

A petition has been filed by Jed McCormick, owner of all the private real property, serial numbers 17-064-0022, 17-064-0027 in Weber County, Utah to annex that area into the Bona Vista Water District.  The service provided by that District is culinary water which was requested by Weber County.         

Additional information about the proposed annexation can be obtained from the District office at 2020 West 1300 North, Farr West, Utah. The District’s telephone number is (801) 621-0474 ext. 204.         

The petition for annexation is scheduled to be considered by the District’s Board of Trustees at its regular meeting to be held April 27, 2026 at 2:00 pm at the District office at 2020 West 1300 North, Farr West, Utah.  Please note the resolution may be delayed for not to exceed 60 days following the public hearing.

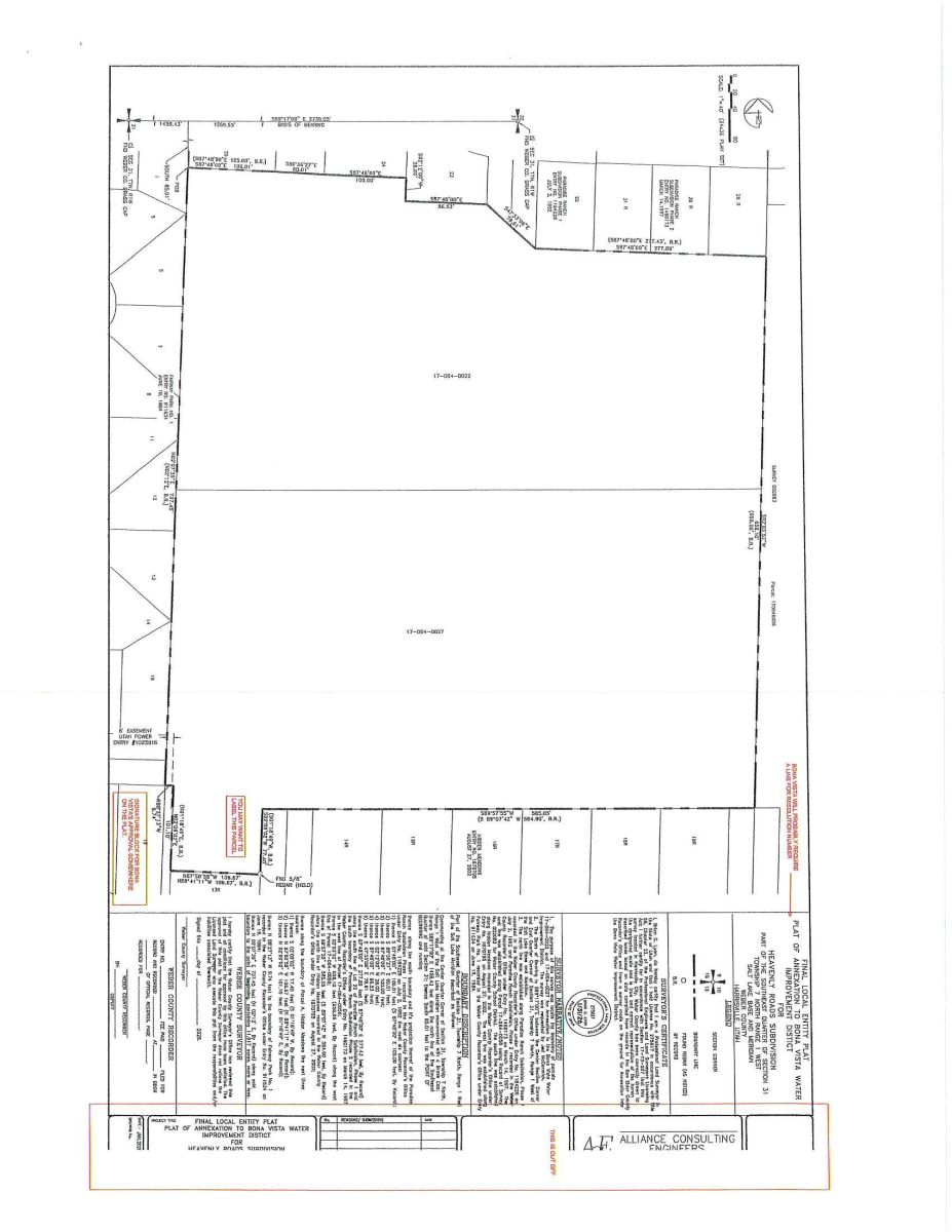
The area to be annexed is shown on the attached plat and is described as follows:

Part of the Southeast Quarter of Section 31, Township 7 North, Range 1 West of the Salt Lake Meridian described as follows:

Commencing at the Center Quarter Corner of Section 31, Township 7 North, Range 1 West of the Salt Lake Meridian monumented with a Brass Cap; thence S89º17'00” E 1458.43 feet along the north line of the Southeast Quarter of said Section 31; thence South 85.01 feet to the POINT OF BEGINNING and running 

thence  along the south boundary and it's projection thereof of the Paradise Ranch Subdivision Phase 1 recorded in the Weber County Recorder's Office under Entry No. 1184226 on July 2, 1992 the next six courses:

1) thence S 87°48'00" E 106.01 feet (S 87º48'00” E 105.00 feet, By Record);

2) thence S 86º36'27" E 60.01 feet;

3) thence S 87°48'00" E 100.00 feet;

4) thence S 02°12'00" W 28.00 feet;

5) thence S 87°48'00" E 96.53 feet;

6) thence S 47°33'08" E 78.61 feet;

thence S 87°48'00" E 277.89 feet (S 87º48'00” E 277.43 feet, By Record) along the south line of Lot 22 of Paradise Ranch Subdivision, Phase 1 and the south boundary of Paradise Ranch Subdivision Phase 2 recorded in the Weber County Recorder's Office under Entry No. 1460173 on March 14, 1997 to the west line of Parcel 17-064-0056;

thence S 02°03'52" W 658.10 feet (658.06 feet, By Record) along the west line of Parcel 17-064-0056;

thence S 89°57'55" W 585.05 feet (S 89º07'42” W 584.90 feet, By Record) along the north line of Hidden Meadows recorded in the Weber County Recorder's Office under Entry No. 1870795 on August 27, 2002;

thence along the boundary of Parcel A, Hidden Meadows the next three courses:

1) thence S 02°09'02" W 77.40 feet (S 01º18'49” W, By Record);

2) thence N 87°50'58" W 106.67 feet (N 88º41'11” W, By Record);

3) thence N 02°09'02" E 101.10 feet (N 01º18'49” E, By Record);

thence N 88°27'13" W 9.74 feet to the boundary of Fairway Park No. 1 recorded in the Weber County Recorder's Office under Entry No. 911634 on June 19, 1984;

thence N 02°07'39" E 737.45 feet (N 02º12' E, By Record) along said boundary to the point of beginning, containing 11.617 acres, more or less.